All空间:长宁区中山西路1279弄,虹桥路创意园
可现状交付也可定制装修精装带家具交付
独栋面积5040平,总高4层,4.9元/㎡/天,总价含物业75万/月;
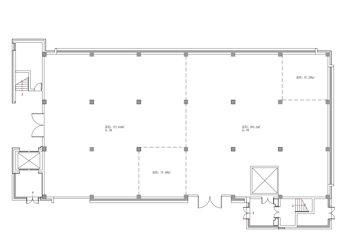
一楼:整层面积1440平可分割67平78平便利店咖啡店,572/588平摄影,单价5.8元/㎡/天,层高6米,可搭复式按单层面积核算,招摄影、咖啡店、便利店、办公等;
二楼:整层面积1200平可按需求分割,单价5.2元/㎡/天,层高5米;
三楼四楼:整层面积1200平可分割55-129平,单价4.5元/㎡/天,层高4.5米;
物业费:25元含空调(工作日8:00-20:00,周六周日8:00-13:00),超出时间加时费50元/小时计费;
车位费:1200元/泊/月
付款方式:押二付二
地铁:3/4/10号线虹桥路600米步行8分钟
交付时间:2023年4月底前
电话:陈先生18616199007
1层67-1440平,5.8元层高6米可搭复式
2层67-1200平,5.2元层高5米
3-4层55平起,4.5元

园区环境






行业资讯

楼盘解析
上一篇
沪公网安备31010702008221